Intro Image 1
Bauland

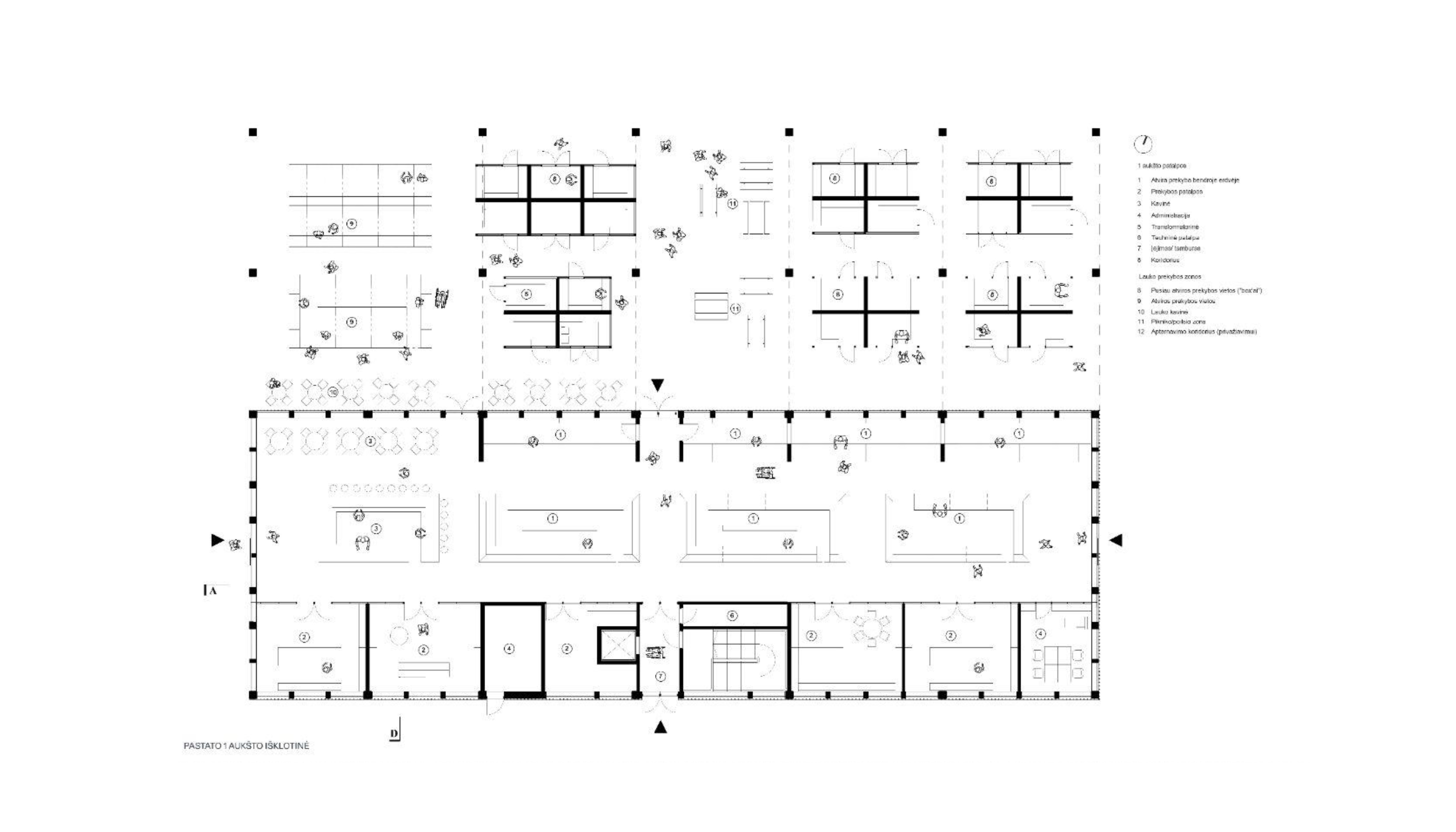
The Gargždai Market Square maintains its central commercial function while strengthening local identity – a continuous wooden roof integrates multifunctional indoor and outdoor zones, complemented by naturalistic water systems, local gravel concrete paving, and a safe shelter beneath the building.

The Gargždai Market and Square renovation project marks a new phase for the city center, where historical memory converges with contemporary urban solutions. At the core of the concept, the “market under one roof” model transforms a traditional trading site into a vibrant, multifunctional community hub. The architectural expression directly reflects local identity: from water features echoing the curve of the Minija River and local gravel concrete paving to a pitched roof silhouette that interprets the historic character of Turgaus Street through modern timber aesthetics.

The project is built upon principles of sustainability and social responsibility, integrating architecture into the natural environment. Regional materials—local timber and traditional shingle roofing—not only reduce the ecological footprint but also create a welcoming, open urban space. Functionality here extends beyond traditional trading boundaries: a humanized street space prioritizes pedestrians and cyclists, a naturalistic wetland system manages rainwater, and a shelter designed beneath the building ensures community safety. This is a space meant not only for shopping but for experiencing the city—from bustling fairs to peaceful relaxation.

Gargždai / Lithuania

2025/08 – 2026/02

Klaipėda District Municipality Administration

Agnė Dailidaitė

Donatas Baltrušaitis

Milda Pacevičiūtė

Jonas Vyšniauskas

Anita Levin

Goda Eigelytė

Edgaras Stuopelis

Giedrė Vainorienė

More projects